The Huangmaohai Cross-sea Corridor is 31 kilometers long and is an important part of the westward extension of the Hong Kong-Zhuhai-Macao Bridge.

Horizon C&D has the honor to participate in the project, and has undertaken more than 10 cofferdams in total for the Z4# main pier cofferdam, Z5~Z6# side auxiliary pier cofferdams, and the 1~4# and 9~15# pier cofferdams of the water approach bridges. Weir project. How did Horizon C&D overcome the wind and waves at sea and successfully complete the cofferdam?
The first step is to face the super project
As the saying goes, knowing oneself and knowing one's enemy will never end in a hundred battles. The Huang Maohai project has various forms, deep embedment and deep silt layer. It is indeed a "bone" that is not easy to chew. To overcome this super project, we must understand him from all aspects:

Weather: The hydrological conditions in the sea area are relatively complex, and are greatly affected by the disastrous weather brought by typhoons. By the sea~ What the typhoon boss said is what (spread hands);
Velocity: The east trough where the east channel is located has the highest velocity, and during the "Mangosteen" storm surge, the water level rises rapidly and the tide rises faster (let me see who is expanding);
Wave: The annual maximum wave height Hmax=3.4m, and the corresponding effective wave height is 2.24m. Have you ever seen the extreme sports of chasing waves in the short video? You can make up your mind~
Water level: The highest water level in history is more than 3 meters, which is equivalent to all the water on the first floor. You stand on the balcony on the second floor and feel that the water will cover your insteps (provided that your first floor is not short, otherwise it will not cover your calves. );
Geology: Mainly silt, cohesive soil, and gravel in the sea and land, Emmm...it is soft and sticky, wet and uneven, and feels extremely bad!
The second step, rigorous cofferdam design to deal with super problems
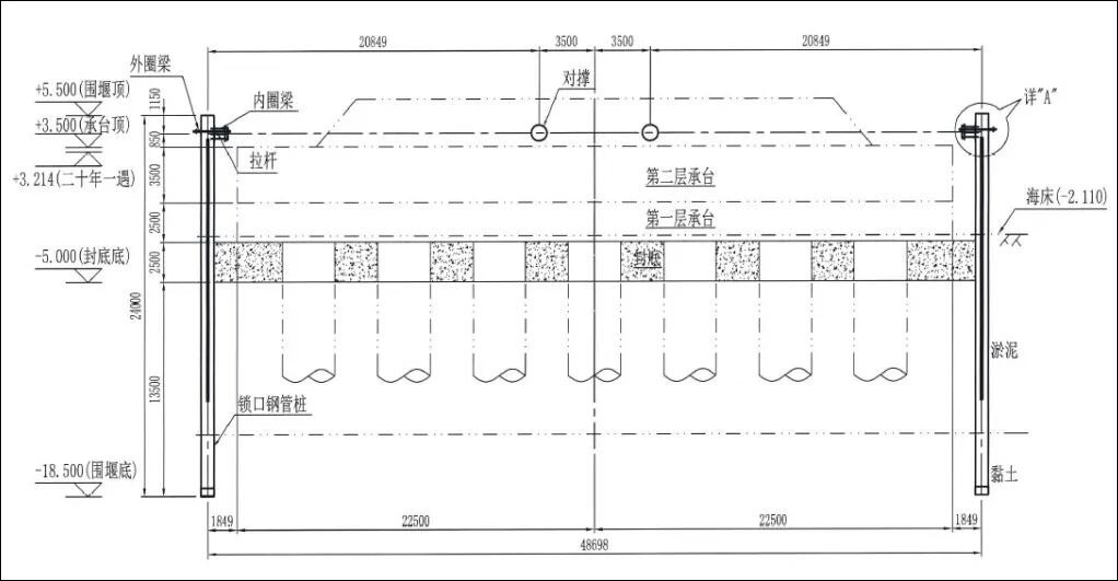
The cofferdam of Z4# main pier of Gaolangang Bridge is a cofferdam of locking steel pipe piles, and the steel pipe lock adopts C-T type lock. C-T type locking pipe piles are good at solving difficult problems in arc-shaped cofferdams and better adapting to the needs of corners.


When the cap is constructed, the top inner support is installed, the mud is sucked for excavation, and the underwater bottom sealing concrete is poured. The first steel support is erected at the +4.5m elevation, guided by the purlin, and steel pipe piles are constructed. After the piles are in place and closed, the mud is sucked to the design elevation, and the concrete back cover is poured underwater.

Layout plan of steel pipe pile cofferdam for Z4# pier of Gaolangang Bridge (plan view)

Layout of steel pipe pile cofferdam for Z4# pier of Gaolangang Bridge (elevation view)

Construction of steel pipe pile cofferdam for Z4# main pier of Gaolangang Bridge
The cofferdams of the Z5#~Z6# side auxiliary piers of the Gaolangang Bridge are constructed with Larsen IVw steel sheet pile cofferdams, and the cofferdams are arranged in an octagonal shape.

Layout plan of steel sheet pile cofferdam for Z5# and Z6# piers of Gaolangang Bridge (plan view)

Layout plan of steel sheet pile cofferdam for Z5# and Z6# piers of Gaolangang Bridge (elevation view)
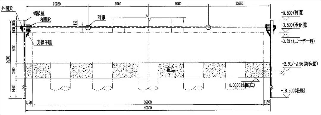
The layout of piers 1~15# of the middle approach bridge is the same. Take the pier 6# pier as an example (the lowest elevation), first set the corbel on the steel casing, assemble three steel supports, and after they are placed in place, take the purlin as the guide Frame construction steel sheet piles, and then suck mud to cover the bottom.

Layout of steel sheet pile cofferdam for piers 1#~15# of the middle approach bridge (upper floor plan)

Layout plan of steel sheet pile cofferdam for piers 1#~15# of the middle approach bridge (partial plan of the upper floor)
The third step, innovative application of the first branch method of the cofferdam in water
It is proposed to use the slideway method to lower the purlin support. First, weld H488 steel on the casing as the inner support of the cofferdam, lower the guiding shoes, lower the support system in batches, and then insert and drive the steel sheet piles in place.

The key point of the construction process is to lower the purlin with the guide hanging shoe process. The guide hanging shoe is made of H488 steel, pads, and support corbels. Each cofferdam is equipped with 10 guide hanging shoes, and the guide hanging shoes are welded on the On the steel casing, and then the third, second, and first purlin supports are lowered to the design elevation along the guide hanging shoes (10 φ426mm round pipes are welded above the third steel purlin as the vertical support structure), and the inner support installation is completed. Then apply steel sheet piles to close.
The fourth step, underwater pads to deal with the gap space
Due to the use of the first-branch method, there will be a certain gap between the purlin and the steel sheet pile, so underwater padding must be carried out.
In order to save time and effort and reduce costs, our company has developed a new type of wedge specially used for underwater pads, which is more convenient and effective than traditional underwater welding pads.


The wedge is composed of upper and lower parts. The lower wedge is lowered with a rope and hung on the outer flange plate of the purlin. Divers carry the upper wedge and insert it into the upper part of the lower wedge to make the two fit together. , Tighten between the purlin and the steel sheet pile.
In short, where there are gaps, it will get stuck, and the word stability must be handled tightly!
The fifth step, special water-proof material to deal with the lock problem
The locks used in the cofferdam need special water-stop treatment. Therefore, according to our experience, our company cooperates with clay cotton balls as the lock and water-stop materials, which can achieve a good water-stop effect.

Company Profile
Shanghai Horizon Construction and Development Co., Ltd. (“Horizon C&D” for short) is a comprehensive equipment operation service provider established by Far East Horizon (03360.HK). Based on construction and construction equipment and materials, it is committed to providing customers with multi-functional, Multi-faceted, full-cycle comprehensive services, through the layout of multi-product lines, covering the nationwide operation network and compound operation capabilities, continue to create value for customers.
Horizon C&D owns new support systems, new formwork systems, aerial work platforms and other equipment, such as road equipment, power equipment and forklifts, with total assets exceeding 10 billion yuan. For municipal construction, housing construction, transportation construction, marine engineering, industrial manufacturing, green energy, warehousing and logistics, culture and art, commercial entertainment and other construction fields, we provide customers with comprehensive services for equipment operation. Editor/Ma Xue
Comment
Write something~